osiedle

Sprzedaż mieszkań zakończona.

Dziekujemy

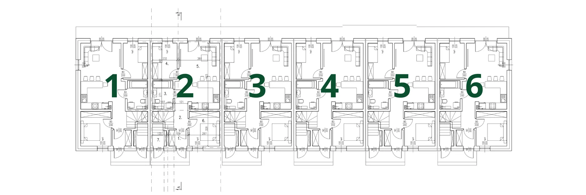
parter

Mieszkania parter 

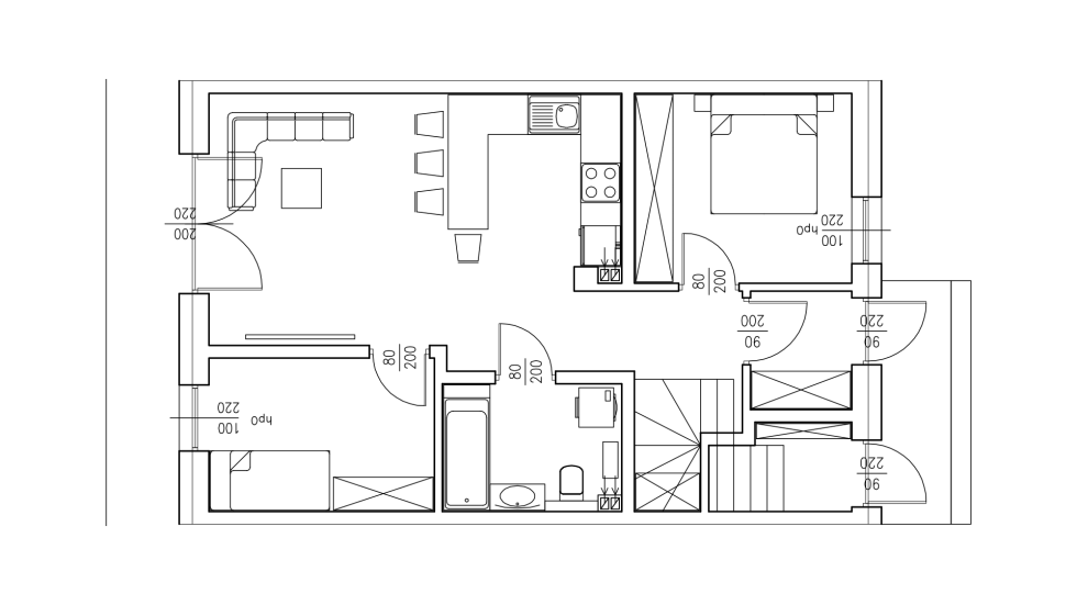
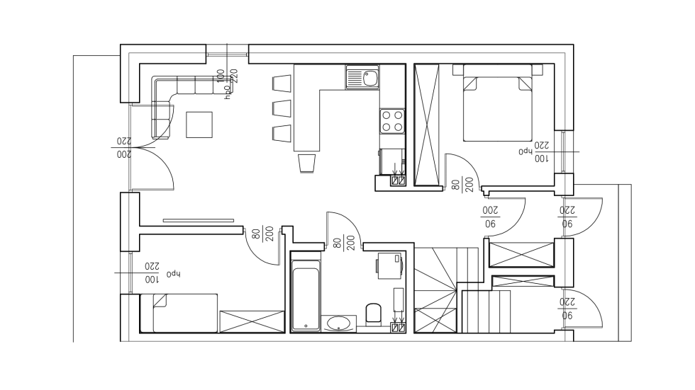
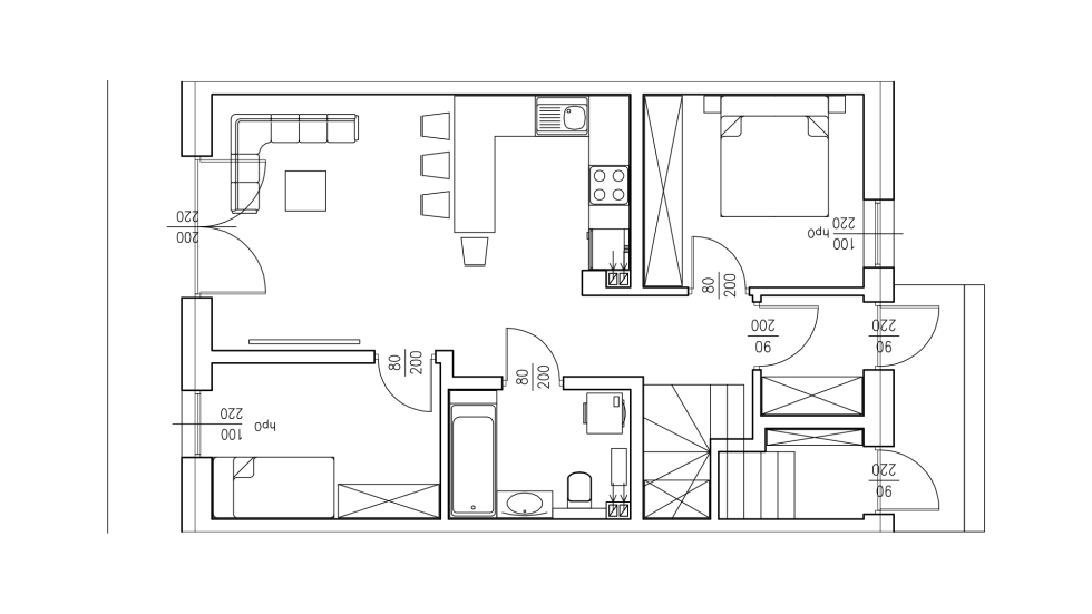
1-1

1. Wiatrołap 2,74 m²
2. Komunikacja 5,78m²
3. Łazienka 5,14 m²
4. Pokój 7,89 m²
5. Pokój + kuchnia 23,63 m²
6. Pokój 9,41 m²
7. Klatka schodowa 2,67 m²

1-2

1. Wiatrołap 2,74 m²
2. Komunikacja 5,78m²
3. Łazienka 5,14 m²
4. Pokój 7,89 m²
5. Pokój + kuchnia 23,63 m²
6. Pokój 9,41 m²
7. Klatka schodowa 2,67 m²

1. Wiatrołap 2,74 m²
2. Komunikacja 5,78m²
3. Łazienka 5,14 m²
4. Pokój 7,89 m²
5. Pokój + kuchnia 23,63 m²
6. Pokój 9,41 m²
7. Klatka schodowa 2,67 m²

1. Wiatrołap 2,74 m²
2. Komunikacja 5,78m²
3. Łazienka 5,14 m²
4. Pokój 7,89 m²
5. Pokój + kuchnia 23,63 m²
6. Pokój 9,41 m²
7. Klatka schodowa 2,67 m²

1. Wiatrołap 2,74 m²
2. Komunikacja 5,78m²
3. Łazienka 5,14 m²
4. Pokój 7,89 m²
5. Pokój + kuchnia 23,63 m²
6. Pokój 9,41 m²
7. Klatka schodowa 2,67 m²

1. Wiatrołap 2,74 m²
2. Komunikacja 5,78m²
3. Łazienka 5,14 m²
4. Pokój 7,89 m²
5. Pokój + kuchnia 23,63 m²
6. Pokój 9,41 m²
7. Klatka schodowa 2,67 m²

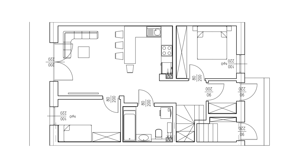
pietro

Mieszkania piętro 

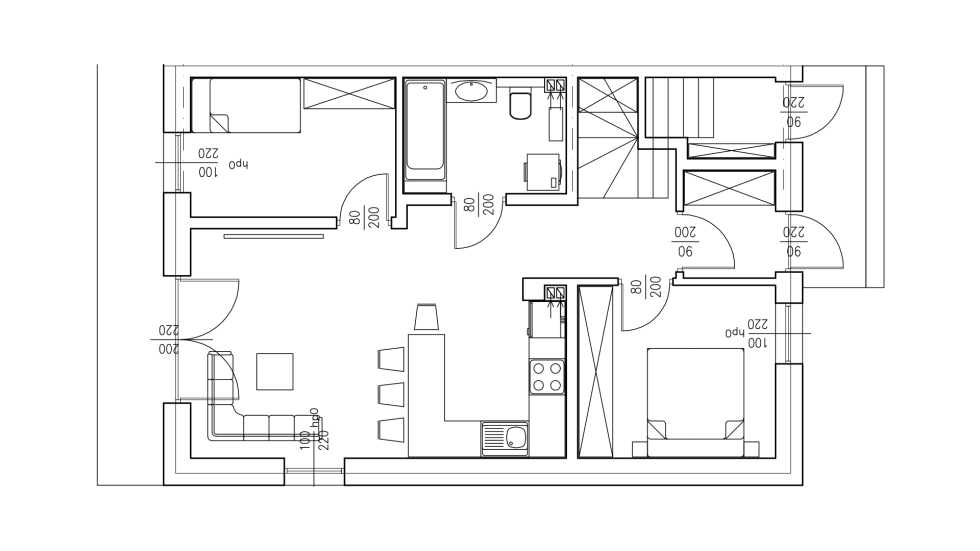
1-1

1. Klatka schodowa 4,56 m2
2. Komunikacja 5,07 m2
3. Łazienka 5,05 m2
4. Pokój 7,89 m2
5. Pokój + kuchnia 23,63 m2
6. Pokój 9,41 m2

1-2

1. Klatka schodowa 4,56 m2
2. Komunikacja 5,07 m2
3. Łazienka 5,05 m2
4. Pokój 7,89 m2
5. Pokój + kuchnia 23,63 m2
6. Pokój 9,41 m2

1. Klatka schodowa 4,56 m2
2. Komunikacja 5,07 m2
3. Łazienka 5,05 m2
4. Pokój 7,89 m2
5. Pokój + kuchnia 23,63 m2
6. Pokój 9,41 m2

1. Klatka schodowa 4,56 m2
2. Komunikacja 5,07 m2
3. Łazienka 5,05 m2
4. Pokój 7,89 m2
5. Pokój + kuchnia 23,63 m2
6. Pokój 9,41 m2

1. Klatka schodowa 4,56 m2
2. Komunikacja 5,07 m2
3. Łazienka 5,05 m2
4. Pokój 7,89 m2
5. Pokój + kuchnia 23,63 m2
6. Pokój 9,41 m2

1. Klatka schodowa 4,56 m2
2. Komunikacja 5,07 m2
3. Łazienka 5,05 m2
4. Pokój 7,89 m2
5. Pokój + kuchnia 23,63 m2
6. Pokój 9,41 m2

MASZ PYTANIA? Jesteśmy do Twojej dyspozycji.

Telenon

663047227
794412012

logo

Lokalizacja:

Podgórze 26
38-100 Strzyżów

Telefon:

663047227
794412012
Email:
info@lw-home.pl

Polityka prywatności

Dane inwestora :

LW HOME Sp. z o.o.
Godowa 638A, 38-100 Strzyżów
NIP: 8191676941
KRS: 0001005541